Greencube Helen
HIND ALATES 41 399€
Hoone karkass toetub liimpuidule (GL-24 tugevus; 120×360). Kogu hoonel kasutatav puitpruss on C24 tugevussordist. Seestpoolt on prussid kaetud OSB puitlaastplaadiga, mis annab hoonele jäikuse ning võimaluse seinale kinnitada erinevad asju nagu riiulid, teler jne. Hoonel on nõuetekohane aurutõke ning välisküljel tuuletõkkekips. Lisaks vajalik tuulutusliist ja puitlaudis.
Sein on aurutihe ning väga soojapidav. Põranda soojustamiseks on kasutatud 300mm soojustust, seinale ja katuslaele 200mm soojustust. Soojustus on paigaldatud nii, et külmasillad oleksid lõigatud, mis teeb hoone veelgi soojapidavamaks. Hoonel on RUUKKI katus, mis on väga vastupidav.
Kõik klaasid on hoonel kolmekordse paketiga, mis annab hoonele täiendava soojapidavuse.
Hoone välisviimistlus on voodrilaudadest, mis on kaetud 2X toonitud puiduõliga või värviga vastavalt kliendi soovile. Väljast on põrand kaitstud näriliste eest, räästaga majadel on paigaldatud täiendav putukakaitsevõrk.
Toa sisesed materjalid valib klient enda soovide järgi avatud kalkulatsiooni alusel.
Põrand: U=0,34 W/m²K (see siis märjas ruumis)
Välisseinad: U=0,15 W/m²K
Katuslagi: U=0,11 W/m²K
Aknad: 0.88 W/m2K
Välisuks U=0,64 W/m²K



Iga detail on oluline!
Greencube majatehas paneb suurt rõhku ka kõige pisemale detailile.
Iga hoone, mis meie tehasest väljub, peab olema perfektne.
Kõik vajalik on vajadusel juba olemas!
Kliendi soovil paigaldatakse hoonesse kõik vajalik koheseks kasutamiseks!

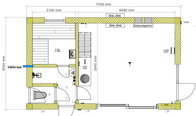
SOOVITUSLIK PÕHIPLAAN


Transport ja paigaldus
Hoone ühendatakse kommunikatsioonidega (elekter, vesi,kanalisatsioon) enne hoone lõplikku üleandmist.
•Hoonete ehitamist on võimalik jälgida tulles tööpäeval objektile.
•Hooned valmistatakse Lihulas asuvas tootmishoones. Eesmärk tagada parim kvaliteet ja mõistlik ehituskiirus.
•Ühe hoone valmistamiseks oleme planeerinud keskmiselt 4 nädalat.
Peale valmimist hooned pakitakse transportimiseks ning ladustatakse tootmishoone valvega krundile transporti ootama.